














Enjoying over 400 metres of prime deep water lakefront on the corner of the Delatite Arm and Ford Inlet of Lake Eildon. A rare opportunity to acquire a property in this highly desired and tightly held enclave.
* Walk through the back gate and onto the banks of the lake
* Launch the boat, cast a fishing line or take a dip in crystal clear water
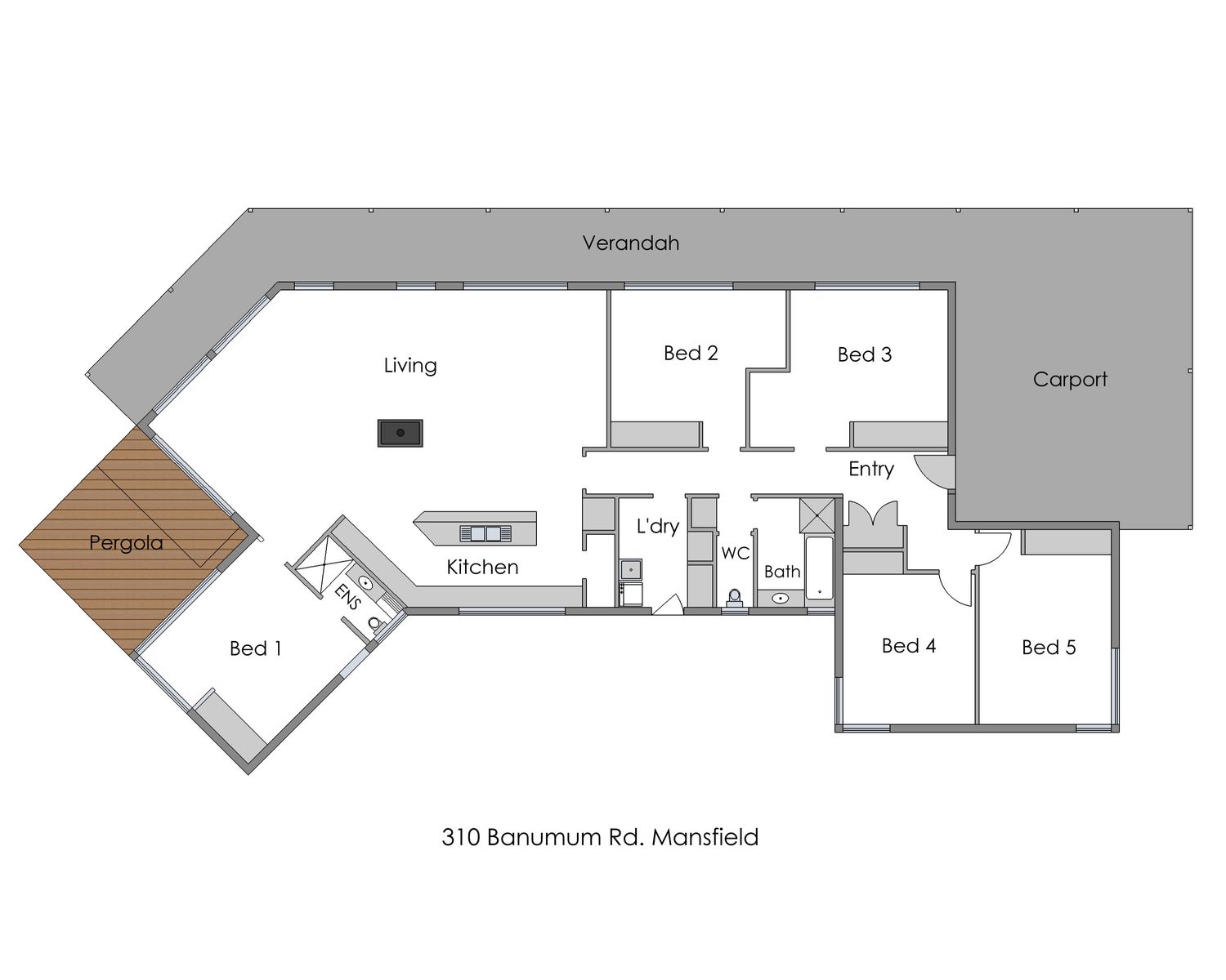
* Light filled custom built 5 bedroom brick home with cathedral ceilings
* Spacious master bedroom with lake views and en-suite
* Open plan sitting and living rooms with floor to ceiling windows
* Established hazelnut plantation, olive grove and mixed fruit orchard
* Pine trees shelter the property from both wind and prying eyes
* Huge dam, artesian bore and over 40,000 litres of rainwater storage
* Large boat shed/workshop features concrete floor and power
* Breathtaking 180 degree lake views and not another house in sight!
















































































































Subscribe to get the latest insider tips, market updates and access to the hottest deals as they come on the market.