







Set on a 770m² (approx.) block with sweeping rural views, this property represents a rare opportunity to create something truly special in a tightly held location.
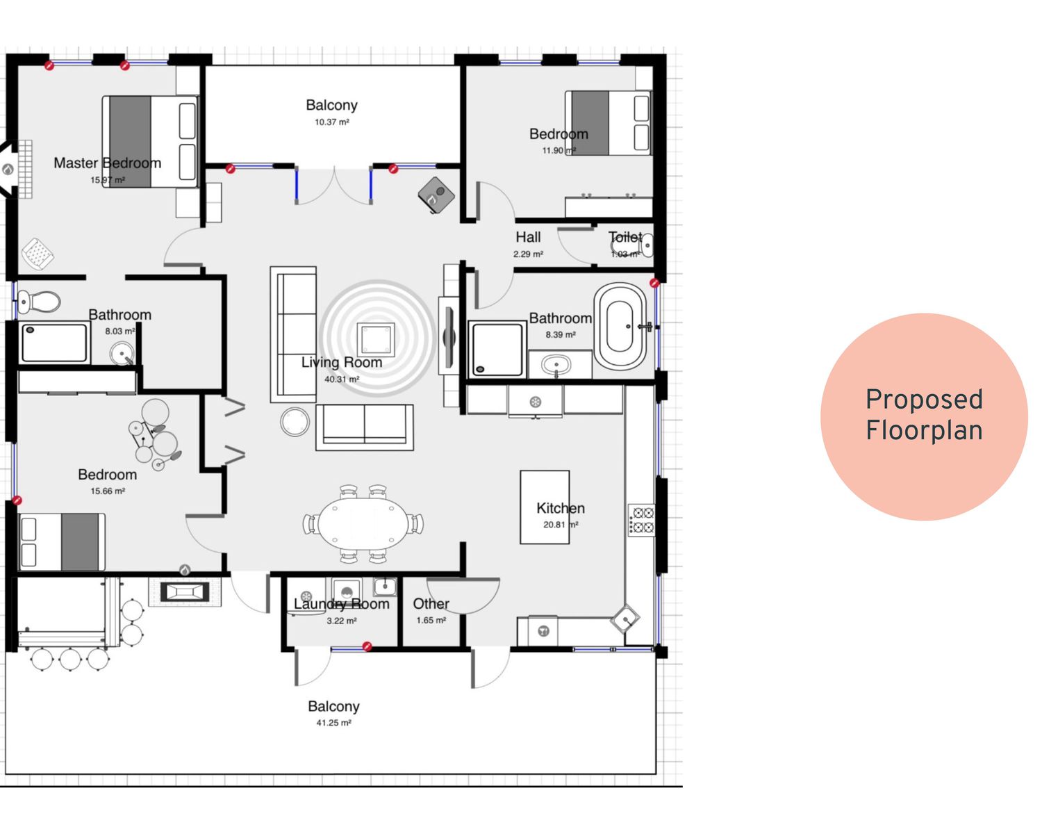
The home is essentially a frame, and provides the perfect canvas for someone ready to take on a rewarding project. Original brick features remain in place, including the chimney, giving a nod to the home’s character and history. Some improvements have already been made, with concrete stumps providing stability and new aluminium windows installed, ensuring a solid foundation and a head start for the next stage of construction. The current floorplan is set up as a 3 bedroom/2 bathroom home, but the lucky new owner will be able to finish it to their required specifications (subject to council approval).
The setting enhances the appeal even further. Stroll down the road to the Swanpool General Store or enjoy a night out at the much-loved Swanpool Cinema. Benalla is only a 15-minute drive, Mansfield just 25 minutes, and there is easy access through Tatong, Samaria and into the famous King Valley wine region.
Whether you are a tradesperson looking for your next project, a renovator with an eye for potential, or an investor seeking an affordable opportunity in a high-demand area, this property is brimming with promise. The combination of original character, and a lovely rural location makes this an offering not to be missed.
Rare opportunities like this do not come along often. Move quickly to secure it before it is gone.
Subscribe to get the latest insider tips, market updates and access to the hottest deals as they come on the market.