















Tucked away at the rear of a peaceful cluster of cottages, 'Birch Cottage' offers privacy and calm, just a short walk from Mansfield’s vibrant High Street.
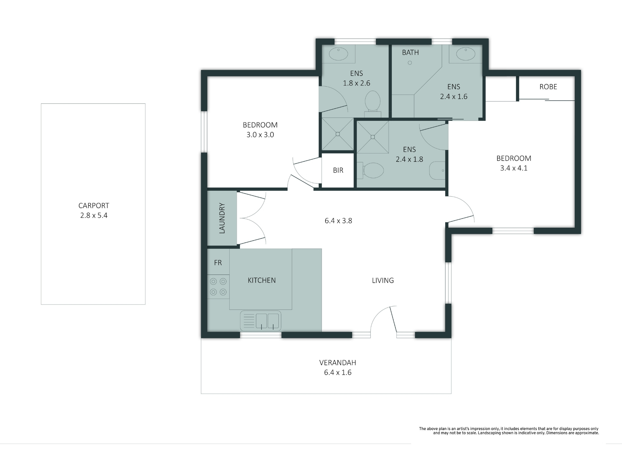
Well presented and full of charm, this two-bedroom, two-bathroom home features timber accents and a generous open-plan kitchen and living area. The kitchen, complete with electric appliances and a breakfast bar, flows seamlessly into the main living space, creating a warm and functional heart of the home.
The master suite includes two adjoining bathrooms - one with a shower, vanity and toilet, and the other with a corner bath (spa functionality not operational) and vanity - offering added comfort and flexibility. The second bedroom also enjoys its own ensuite with shower, vanity and toilet.
Outside, an undercover verandah overlooks the leafy backyard with established gardens and mature trees. With split system heating and cooling, an undercover carport, and no through-traffic, this low-maintenance property is ideal for first home buyers, downsizers, or savvy investors seeking a versatile opportunity.
For investors, we provide seamless management solutions tailored to your goals - whether you’re looking to enter the permanent rental market or tap into holiday rental income through our sister company, Mansfield Holiday Homes. Benefit from expert care and local knowledge to maximise your investment with ease.







































Subscribe to get the latest insider tips, market updates and access to the hottest deals as they come on the market.